ZJHM气动套筒调节阀
- 销售:
- 销售:
- 传真:
详情介绍
- 产品介绍
- 服务承诺
- 订货流程
ZJHM气动套筒调节阀形小、体轻、高性能、大容量,是符合IEC标准的新一代通用调节阀产品。它适用于一般流体介质和工艺条件的生产过程制系统。
本产品由新型的气动多弹簧薄膜执行机构和低流阻套筒阀组成。特点如下:
1、采用平衡型芯、不平衡力小,允许压差大,操作稳定。
2、阀芯导向面大,可改善由涡流和冲击引起的振荡,并减少损坏。
3、比普通单双座调节阀噪声降低10bd左右。
4、结构简单,装拆维修方便。
气动套筒调节阀 主要技术参数
公称通径mm | 25 | 40 | 50 | 65 | 80 | 100 | 150 | 200 | 250 | 300 | 350 | 400 | ||||
阀座直径mm | 25 | 32 | 40 | 50 | 65 | 80 | 100 | 125 | 150 | 200 | 250 | 300 | 可与本公司 | |||
额定流量 | 直线 | 11 | 17.6 | 27.5 | 44 | 69 | 110 | 176 | 275 | 440 | 690 | 1000 | 1600 | |||
等百分比 | 10 | 16 | 25 | 40 | 63 | 100 | 160 | 250 | 400 | 630 | 900 | 1440 | ||||
公称压力MPa | 0.6 1.6 4.0 6.4 | |||||||||||||||
行程mm | 16 | 25 | 40 | 60 | 100 | |||||||||||
流量特性 | 直线、等百分比、快开型 | |||||||||||||||
介质温度℃ | -40~230℃(常温型),散热片式230~450℃(中温型),特殊订货-100~600℃ | |||||||||||||||
法兰标准 | 符合JB78-59、JB79-59标准,可按JB/79.1-94、JB/79.2-94、ANSI、JIS、DIN 等标准订货生产 | |||||||||||||||
阀体材质 | PN | 0.6,1.6 | WCB(ZG230-450) CF3CF8 CF8M | |||||||||||||
4.0,6.4 | WCB(ZG230-450)、ZG1Cr18Ni9Ti、ZG0Cr18Ni12Mo2Ti CF8 CF8M | |||||||||||||||
阀体型式 | 直通单座铸造球型阀 | |||||||||||||||
阀芯材质 | 1Cr18Ni9、0Cr18Ni12Mo2Ti CF8 CF8M | |||||||||||||||
上阀盖形式 | 普通式(常温型)、热片式(中温型)、低温型 | |||||||||||||||
可调比R | 50:1 | |||||||||||||||
气源接头 | M16×1.5 | |||||||||||||||
注:可为用户提供ANSI,JPI,JIS法兰的产品,其法兰距按用户需要确定。
气动套筒调节阀 主要零件材料
零件名称 | 材料 | 温度范围 |
阀体上阀盖 | HT200 | -20~200℃ |
ZG230-450 | -40~450℃ | |
ZG1Cr18Ni9Ti | -250~550℃ | |
ZG0Cr18Ni12Mo2Ti | -40~600℃ | |
阀芯、阀座 | 1Cr18Ni9 | -250~550℃ |
0Cr18Ni12Mo2Ti | -250~550℃ | |
填 料 | 聚四氟乙烯 | -40~200℃ |
膜 片 | 丁晴橡胶夹增强涤沦织物 | |
压缩弹簧 | 60Si2Mn | |
膜 盖 | A3 |
气动套筒调节阀 执行机构主要技术参数
型 号 | ZHA(B)-22 | ZHA(B)-23 | ZHA(B)-34 | ZHA(B)-45 |
有效面积cm2 | 350 | 350 | 560 | 900 |
行 程mm | 16 | 25 | 40 | 60 |
弹簧范围KPa | 20~100(标准);40~200;80~240;20~60;60~100 | |||
气动套筒调节阀 性能指标
项目 | 指标值 | 项目 | 指标值 | |||||
基本误差% | 不带定位器 | ±5.0 | 始 | 气关 | 不带定位器 | 始点 | ±5.0 | |
终点 | ±2.5 | |||||||
带定位器 | ±1.0 | 带定位器 | 始点 | ±1.0 | ||||
终点 | ±1.0 | |||||||
回差% | 不带定位器 | 3.0 | 气开 | 不带定位器 | 始点 | ±2.5 | ||
终点 | ±5.0 | |||||||
带定位器 | 1.0 | 带定位器 | 始点 | ±1.0 | ||||
终点 | ±1.0 | |||||||
死区% | 不带定位器 | 3.0 | ||||||
带定位器 | 0.4 | 允许泄漏量L/h | 1×10-3× | |||||
额定行程偏差% | ±2.5 | |||||||
注:本产品执行GB/T4213-92国家标准。
气动套筒调节阀 允许压差
开关 | 执行 | 弹簧 | 气源 | 需 | 公称通径(阀座直径)mm | |||||||
25 | 40 | 50 | 65 | 80 | 100 | 150 | 200 | |||||
气 | ZHA-22 | 20~100 | 0.14 | - | 3.00 | |||||||
ZHA-23 | 20~100 | 0.14 | - | 2.25 | 1.95 | |||||||
ZHA-34 | 20~100 | 0.14 | - | 2.36 | 2.04 | 1.67 | ||||||
ZHA-45 | 20~100 | 0.14 | - | 1.41 | 1.14 | |||||||
气 | ZHA-22 | 20~100 | 0.14 | - | 1.5 | |||||||
ZHA-23 | 20~100 | 0.14 | - | 1.13 | 0.98 | |||||||
ZHA-34 | 20~100 | 0.14 | - | 1.18 | 1.02 | 0.84 | ||||||
ZHA-45 | 20~100 | 0.14 | - | 0.71 | 0.57 | |||||||
注:1、P-阀门定位器;R-压力继动器。
2、允许压差为阀关闭P2=0状态,△P的大值。
3、大压差超过1.0MPa,阀塞、套筒表面堆焊硬质合金。
可配附件:
定位器、空气过滤减压器、保位阀、行程开关、阀位传送器、电磁阀、手轮机构等

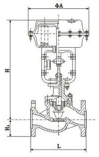
气动套筒调节阀 主要外形尺寸
DN | L | H | H1 | 质量(kg) | φA | |||||||
PN16 | PN40 | PN64 | 普通 | 高温 | PN6 | PN16 | PN40 | PN64 | PN6 | PN40 | ||
25 | 185 | 197 | 210 | 410 | 560 | 50 | 57 | 70 | 20 | 24 | 285 | |
40 | 222 | 235 | 251 | 455 | 620 | 65 | 75 | 85 | 26 | 35 | ||
50 | 254 | 267 | 286 | 457 | 627 | 70 | 82 | 90 | 30 | 40 | ||
65 | 276 | 292 | 311 | 610 | 790 | 80 | 92 | 100 | 47 | 66 | 360 | |
80 | 298 | 317 | 337 | 622 | 807 | 95 | 100 | 107 | 55 | 78 | ||
100 | 352 | 368 | 394 | 640 | 850 | 105 | 110 | 117 | 125 | 65 | 99 | |
150 | 451 | 473 | 508 | 870 | 1130 | 132 | 142 | 150 | 172 | 130 | 160 | 470 |
200 | 600 | 650 | 890 | 1150 | 160 | 170 | 187 | 207 | 175 | 250 | ||
250 | 730 | 775 | 1203 | 1523 | 187 | 202 | 225 | 235 | 350 | 470 | 580 | |
300 | 850 | 900 | 1234 | 1554 | 220 | 230 | 257 | 265 | 500 | 660 | ||
良好的品质、优良的服务 开云官方网站登录入口-开云(中国)为你创造更多价值!
“开云官方网站登录入口-开云(中国)”的期望,不断提升服务质量,精益求精,“真诚的服务”是“开云官方网站登录入口-开云(中国)”永恒的主题。“开云官方网站登录入口-开云(中国)”严格按照IS09001-2000 质量体系认证要求,质量严格把关, 责任到人,确保生产、销售、服务的健康运行。加强与用户沟通,竭诚为广大客户提供优良产品,至善至美服务。特此我厂做出以下承诺:
产品标准:
产品严格按照中国GB、HG 标准和美国API等标准设计、制造、验收。密封面硬度达到国家规定要求,宽度超过国家标准。
售前服务:
产品介绍,技术交流,非标产品设计,疑难解答。
售中服务:
守信合同,保证及时供货,随时保持与客户联系。 对特殊或复制的产品,我厂安排技术人员对用户进行产品使用、故障排除
售后服务:
1、“开云官方网站登录入口-开云(中国)”牌产品品质期为自出厂起12个月,实行“三包”服务(包退、包换、保修)。
2、产品在使用中我厂定期组织技术、质检人员进行访问,征询用户对产品质量、 使用状况、改进意见等方面的反馈, 以便进一步提高产品质量。
3、对用户投诉质量问题,快速作出反应,售后服务人员在24-36小时(省外48小时)赶赴现场。
4、对售后服务,要求用户填写服务后的质量反馈信息表,并作出鉴定意见,以便提高开云官方网站登录入口-开云(中国)的服务质量。
1、客户如对产品有特殊要求,须在订货合同中提供以下说明:
a、结构长度;
b、连接形式;
c、公称直径、全通径、缩径、管道尺寸;
d、运行介质及温度、压力范围;
e、试验、检验标准及其他要求
2、本厂可根据客户特定要求配置各类驱动装置。
3、如由客户提供确定的阀门类型和型号时,客户应正确说明其型号的含义和要求,在供需双方理解一致的条件下签订合同。
4、期货、订货的客户请先来电函详细告诉所需的阀门型号、规格、数量以及交货时间、地点,并按总的30%预定金或全额货款及时汇入我厂帐户,其余货款待发货前汇入,以便及时安排发货。
订单流程:
1、客户采购清单传真至,或来电咨询
2、收到客户采购清单,为客户提供阀门型号选型与报价(价格清单)。
3、具体商定:交货期、特殊要求等事宜。
订货须知:
1、客户如对产品有特殊要求,须在订货合同中提供以下说明:
|
|||||
|
|||||
2、本厂可根据客户特定要求配置各类驱动装置。
|
|||||
3、如由客户提供确定的阀门类型和型号时,客户应正确说明其型号的含义和要求,在供需双方理解一致的条件下签订合同。
|
|||||
4、期货、订货的客户请先来电函详细告诉所需的阀门型号、规格、数量以及交货时间、地点,并按总的30%预定金或全额货款及时汇入我厂账户, 其余货款待发货前汇入,以便及时安排发货。
|
售中服务:
守信合同,保证及时供货,随时保持与客户联系。
对特殊或复制的产品,我厂安排技术人员对用户进行产品使用、故障排除
售后服务:
1、“开云官方网站登录入口-开云(中国)”产品品质期为自出厂起12个月,实行“三包”服务(包退、包换、保修)。
2、产品在使用中我厂定期组织技术、质检人员进行访问,征询用户对产品质量、使用状况、改进意见等方面的反馈,
以便进一步提高产品质量。
3、对用户投诉质量问题,快速作出反应,售后服务人员在24-36小时(省外48小时)赶赴现场。
4、对售后服务,要求用户填写服务后的质量反馈信息表,并作出鉴定意见,以便提高“开云官方网站登录入口-开云(中国)”的服务质量。
声明 |
|